Ярославский центр производственной кооперации и субконтрактации

ЯрТПП

Биржа субконтрактов-2012. Производственный заказ N500

Программа выпуска: 1500 штук/месяц = 18 000 штук/год (каждого наименования)
Материал: 18ХГТ ГОСТ 4543-71 (оптимально поставщика)

Перечень заказываемых деталей:
Шестерня ведущая А650.300.003
Блок шестерен А650.300.015
Шестерня А650.300.016
Блок шестерен А650.300.032
Вал А650.300.038
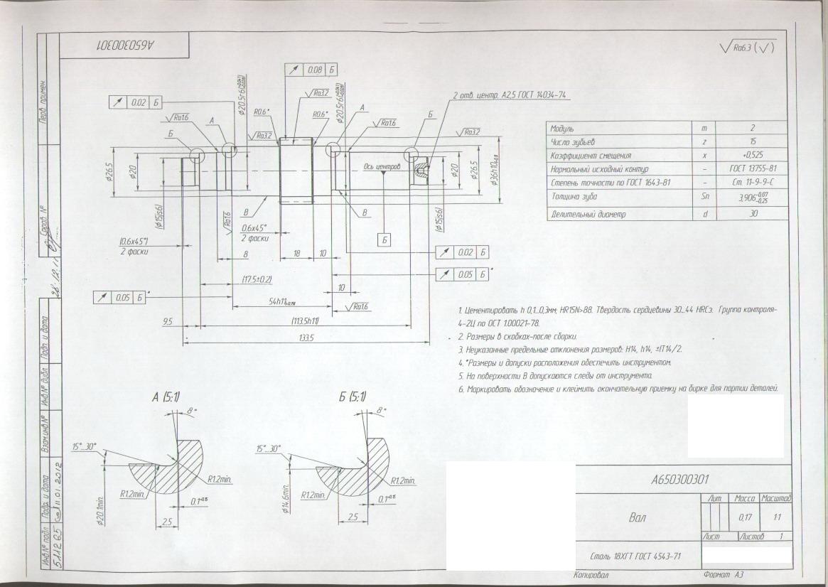
Вал А650.300.301
Шестерня А650.300.302
Шестерня А650.300.303
Шестерня А650.300.602

Скачать полный комплект одним архивом.



На переговоры допускаются только предприятия, подавшие заявку на участие!
Для этого необходимо заполнить квалификационную карту и отправить её по электронной почте.

Заказчик проводит переговоры с представителями предприятий, которые прислали заполненные квалификационные карты.
Заказчик вправе отказаться от переговоров c потенциальным поставщиком в "Бирже субконтрактов", если "квалификационная карта" подана не в полном объёме и/или в ненадлежащем качестве.

Целью переговоров является:

  1. получение поставщиками технических и иных требований к предприятию-Поставщику в процессе прямых переговоров с Заказчиком;
  2. обсуждение специфики заказа;
  3. ознакомление Заказчика с технико-экономическими возможностями предприятий-поставщиков;
  4. заключение предварительных соглашений между Заказчиками и Поставщиками.

Всю необходимую информацию можно получить по телефону (4852) 45-80-57, 21-85-24.
ЯрТПП не несет ответственность за достоверность информации, предоставленной Заказчиками и Поставщиками, и размещенной на сайте www.yarcs.yartpp.ru.

Полный перечень производственных заказов Биржи субконтрактов 27.06.2012 в Ярославле.




Ярославский центр субконтрактации
150000, Ярославль, ул. Свободы, 62
Телефоны: (4852) 21-85-24, 45-80-57 | subcontr@yartpp.ru

© ЯрТПП, 2005 — 2026